Our FibreRail PVC Safety Handrail is now End Of Line. Use code RAIL40 at checkout for 40% off. Further bulk discounts are available.

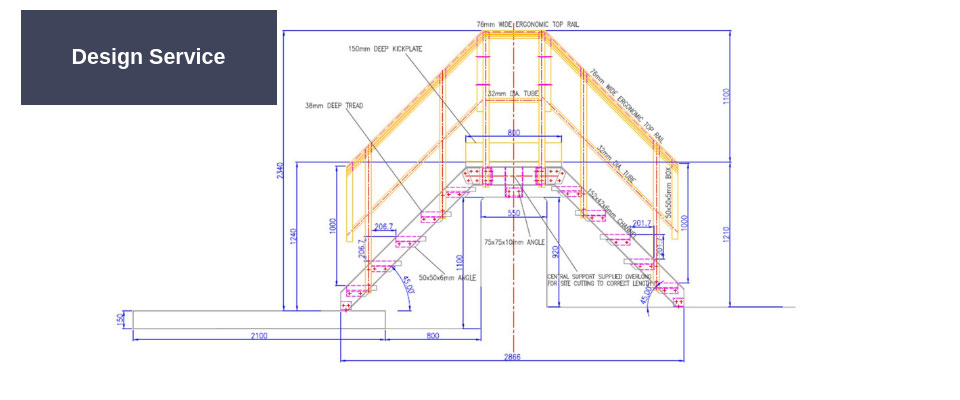
Design Service

 

From the smallest cut grating order to the largest turnkey structural project, FibreGrid is the proven design service of choice for a large and rapidly growing contingent of satisfied customers. FibreGrid’s design team is staffed and trained to provide outstanding service and superior technical support, from the conceptual and bidding stage through to the installation stage of any given project. FibreGrid’s design team welcomes the opportunity to provide solutions to problems. Our team has the experience and is distinctively qualified to design cost effective, high performance composite structural systems.

 

FibreGrid’s estimating professionals and project managers work with numerous internal resources in order to ensure that our customers are offered and receive custom fabricated systems which meet all of their needs and requirements. The FibreGrid supporting team includes:

 

  • Local Project Consultation & Management
  • Corrosion & Application Experts
  • Research & Development Staff
  • 2-D CAD Services
  • Scheduling & Procurement Specialists
  • Highly Experienced Manufacturing & Fabrication and Installation Teams
  • Transportation and Packaging Technicians

 

Other services provided by the design team include engineering seminars for architects and engineers, contractors and customers, sealed drawings and calculations by a registered professional engineer. For those customers requiring a total project solution, FibreGrid offers turnkey design, manufacture, fabrication, and installation by one of FibreGrid's trained and certified installation crews.

 

As one of the original pioneers in the GRP fabrication industry, FibreGrid has amassed more experience in design, fabrication and installation than the majority of our competitors combined. FibreGrid has the experience, capability, and support staff required to ensure successful project completion and total customer satisfaction.

For more information please contact t: +44(0)1440 712722 or e: sales@fibregrid.com.

 



 

View Installation Service >

 

View Fabrication Service >

 

View Cut to Size Service >